Добро пожаловать на http://vipplan.ru

Випплан Реутов - это тысячи проектов домов в нашем каталоге!

Вы всегда сможете найти для себя проект дома вашей мечты! Даже если этого не случилось, мы готовы в любую минуту предложить проект индивидуального дома.

Забыли пароль?
Вы еще не регистрировались?

Перейдите по ссылке ниже на страницу регистрации.

Регистрация...

Внимание!!!

В проектную документацию могут быть внесены изменения любой сложности, в соответствии в Вашими пожеланиями!

Полезные статьи

Плиты перекрытий

Железобетонные плиты очень широко используются в строительстве. При помощи них возводят как промышленные объекты так жилые. Железобетонные плиты перекрытия являются главной частью любого строительного объекта вне зависимости от этажности....

Правильная изоляция подвала

Какой выбрать материал, как правильно выполнить работу, перед началом изоляции подвала какие подготовительно-строительные работы следует провести и какой момент играет правильное выполнение работ. Последние несколько лет придали много хлопот жильцам домов, увлажнив им подвалы. Этот период показал насколько важно обеспечить надлежащую защиту зданий от грунтовых вод и воздействия влаги....

Проекты домов и коттеджей > Каталог проектов домов > Уютный дом с мансардой Vg1359

Уютный дом с мансардой Vg1359

Уютный дом с мансардой
Зарегистрируйтесь

Проект № Vg1359


Техническое описание
Общая площадь: 90.24 м2
Жилая площадь: 67.43 м2
Высота здания: 7.68 м
Размеры дома: 7.48м×9.38м
Кол-во комнат: 4
Цокольный этаж: нет
Гараж: нет
Мансарда: есть

Kонструкция
Фундамент: Щелевой
Перекрытия: Деревянные балки
Материал стен: Газобетон

Архитектурный раздел
Конструктивный раздел
АР+КР - 44 000 (Со скидкой 20%)
Проект индивидуального одноэтажного жилого дома с мансардой с размерами здания в 7,48 x 9,38м. Наружная отделка здания - облицовочный кирпич (бежевый). Цоколь- отделка клинкерной плиткой. Вентканалы и дымоходы -отделка клинкерной плиткой в цвет облицовочного кирпича. Фундамент - стена в грунте ("щелевой"), монолитный, ж/б. Наружные стены дома: газобетонные блоки, минеральная вата, вентзазор, облицовочный кирпич. Внутренние стены: - газобетонные блоки. Перегородки: - ГКЛ на металлическом каркасе с использованием теплошумоизоляционных материалов в межкаркасном пространстве. Пол первого этажа - пол по грунту. Пол мансардного этажа - по деревянным балкам с использованием теплошумоизоляционных материалов типа "URSA" в межбалочном пространстве. Потолок мансардного этажа - по затяжкам стропильной системы. Крыша двускатная. Покрытие - металлочерепица. Перемычки - монолитные и сварные из профиля проката. Окна - металлопластиковые, выполненные по индивидуальному заказу. Лестница - деревянная, выполняется по индивидуальному заказу.
Генплан застройки участка / Паспорт проекта 7000 руб / 10000 руб
Инженерный раздел (полный) 50000 руб
Смета на строительство 25000 руб
Теплотехнический расчет материалов стен Бесплатно
Стоимость проекта со незначительнми изменениями 52750 руб
Стоимость проекта со средними изменениями* 59500 руб
Стоимость проекта со значительными изменениями** 61300 руб

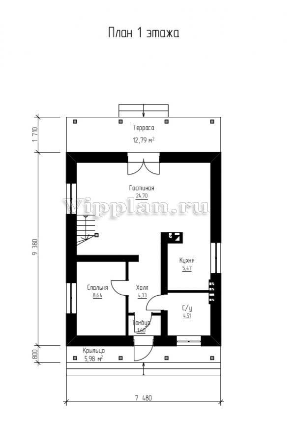
План первого этажа


Тамбур — 1,60 кв м
Холл — 4,33 кв м
Гостиная — 24,70 Спальня — 8,64 кв м
Кухня — 5,47 кв м
С/у — 4,51 кв м

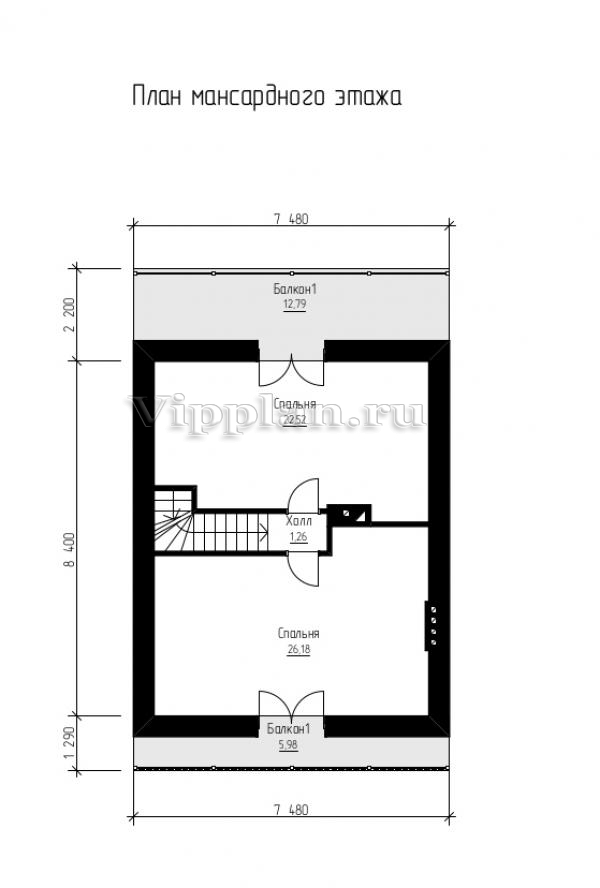
План мансардного этажа


Холл — 1,26 кв м
Спальня — 22,52 кв м
Спальня — 26,18 м Балкон — 12,79 кв м
Балкон — 5,98 кв м
Уютный дом с мансардой Уютный дом с мансардой Уютный дом с мансардой Уютный дом с мансардой

Модификации проектов

Внесение изменений и привязка к участку строительства

В любой из проектов от компании VIPplan - Реутов по вашему желанию могут быть внесены изменения в материалы стен, материалы наружной отделки дома, а также будет произведена адаптация проекта под конкретный регион строительства (с учетом грунтов региона, геологических особенностей вашего участка и местных климатических условий) - БЕСПЛАТНО !!! (кроме проектов со скидкой и проектов наших партнеров).

Любой из проектов, размещенных на сайте reutov.vipplan.ru мы можем выполнить из требуемых вам строительных материалов: ячеистый бетон (газобетон, пеноблок), керамоблок, кирпич, шлакоблок, бетонный блок, дерево (брус, клееный брус), каркасная технология (деревянный каркас, металлокаркас (ЛСТК)).

Фасад дома и его наружную отделку так же возможно выполнить с применением различных облицовочных материалов: структурной штукатурки, (с утеплителем и без), сайдингом (пластиковый или металлосайдинг), фиброплитами, кирпича.

 
6 Избранные
проекты

Доставка проектов по России: Москва (Московская область), Санкт-Петербург (Ленинградская область), Краснодар, Ростов-на-Дону, Ставрополь, Сочи, Волгоград, Новосибирск, Белгород, Брянск, Воронеж, Саратов, Хабаровск, Астрахань, Нальчик, Владикавказ, Екатеринбург, Тюмень, Самара, Нижний Новгород, Казань, Пермь, Уфа, Челябинск, Красноярск, Ханты-Мансийск, Иркутск, Курган, Оренбург, Омск, Томск, Барнаул, Новокузнецк, Кемерово, Абакан, Чита, Якутск, Южно-Сахалинск, Петропавловск-Камчатский и страны ближнего зарубежья: Белоруссия, Украина, Казахстан